Cazan din fontă pe combustibil solid Solida 6 – 30.2 kW
Cazan SIME Solida 6, 30.2 kW
Acest produs nu mai face parte din oferta
Solida 6 – 30.2 kW este un cazan cu trei elemenţi din fontă cu funcţionare pe combustibil solid echipat cu dispozitiv de reglare a tirajului.
COD PRODUS: SOL_8058603
Cazanele pe combustibil solid din fontă Solida de la SIME sunt proiectate pentru sistemele de încălzire centrală. Concepute pentru arderea combustibilului solid sunt ideale pentru funcţionarea pe lemne şi carbune. Ele corespund perfect noilor exigenţe privind energiile alternative. Construite din fontă, un aliaj al cerui caracteristici rămân neschimbate cu trecerea timpului, conferă o siguranţă şi o durată de viaţă mare. Uşa de alimentare mare uşurează încărcarea şi face accesul pentru curăţare foarte facil şi practic.
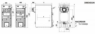
Date tehnice:
- Putere termică nominală: 30.2 kW
- Durata unei încărcături cu carbune: > 4 h
- Durata unei încărcături cu lemn: > 2 h
- Volum de încărcare: 42.5 dm3
- Număr de elemenţi din fontă: 6
- Temperatura max. de lucru: 95°C
- Temperatura min. a apei pe retur: 50°C
- Volumul de apă al cazanului: 35 l
La funcţionarea cu lemne, puterea cazanului se reduce cu 10%
Producător: Sime
Putere (kW): 30.2
-
Opinia cumpărătorilor despre Cazan SIME Solida 6, 30.2 kW
* pentru a putea posta o recenzie / comentariu trebuie să fiţi autentificat













